18 Maryknowe, Gauldry, DD68SL

*** UNDER OFFER ***

This immaculately presented two-bedroom semi-detached bungalow is located within the well sought after village of Gauldry. The property sits within a quiet cul-de-sac and is a short drive away from the A92 providing excellent commuting links to Dundee and St. Andrews. The property is in a move in condition ideal for first time buyers or those looking to downsize.

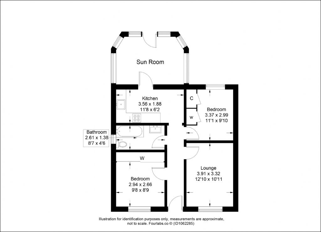
The property opens to the entrance hallway which is laid with wood effect laminate flooring extending through to the lounge. The lounge is well sized and is located to the front of the property benefiting from a large window allowing ample natural light to fill the room. The room is entered by a Georgian glass door and has been freshly decorated. To the rear of the property is the modern kitchen with conservatory. The kitchen benefits from fitted wall and base units with an integrated microwave, oven, gas hob and stainless-steel sink. There is space for further white goods, and the fridge freezer is included. A perfect space for dining, the conservatory is generously sized and benefits from the privacy of the rear garden.

Both bedrooms are of similar size and are laid with carpet flooring and benefit from fitted wardrobes. The bathroom is also of a modern design and is fitted with a white three-piece suite and vanity unit offering ample storage space. The room also has a stainless-steel heated towel rail and mirrored medicine cabinet.

To the front of the property is a lawned garden and monoblock driveway leading to the garage. The rear garden is a versatile space with patio and decking ideal for outdoor dining, and lawn. The timber shed is also included, perfect for further storage.

This is an excellent opportunity to purchase a quality bungalow within a semi-rural setting. Early viewing is highly recommended to fully appreciate this property.

CONDITIONS

If you would like to enquire about this property then please call our office on 01382 227 555. Viewing by appointment only.

Back to Properties