40 Myrtlehall Gardens, Dundee, DD40TP

*** UNDER OFFER ***

This four-bed semi-detached property is located within a quiet cul-de-sac amongst similar style properties within a popular residential area.  There is easy access to many amenities including shops, Ballumbie Castle Golf Course and commuting links to the city centre.  The property is also within walking distance of Greenfield Academy. 

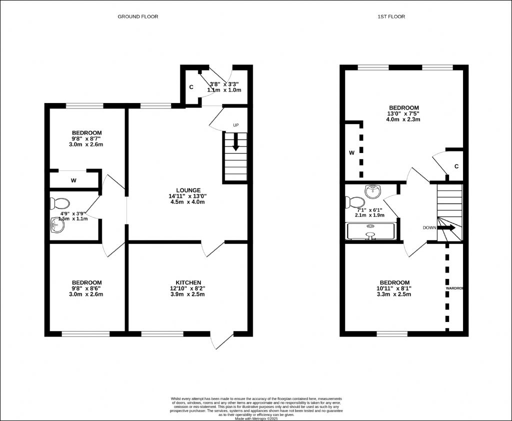
The property opens to the entrance vestibule which is laid with laminate flooring which extends through to the lounge.  There is a good sized cupboard within the vestibule which houses the fuse box and is an ideal space for coats and shoes.  The spacious lounge is located to the front of the property with a large front facing window and carpeted stairs leading to the first floor accommodation.  The downstairs bedrooms and WC are accessed from the lounge with the larger bedroom benefiting from fitted wardrobes with mirror sliding doors.  To the rear of the property is the kitchen with white wall and base units and a contrasting black worktop and black sink.  The integrated appliances include an oven, microwave, electric hob and dishwasher.  The room is also fitted with a breakfast bar and a door opening to the enclosed rear garden.

On the first floor are two double bedrooms of similar size, both benefitting from fitted wardrobes.  The shower room is of a modern design with tiled flooring and wet wall surround.  The room is fitted with a walk in shower cubicle, floating vanity unit with wash hand basin and a heated towel rail. 

The front garden is laid with stone chips ideal for off street parking and easy maintenance.  The rear garden is fully enclosed and benefits from a decking area and artificial grass excellent for families and summer entertaining.

Early viewing is highly recommended to fully appreciate this property.

CONDITIONS

If you would like to enquire about this property then please call our office on 01382 227 555. Viewing by appointment only.

Back to Properties