Lower Obney View, Main Street, Bankfoot, PH14AA

*** UNDER OFFER ***

This beautifully presented two-bedroom main-door ground-floor apartment has been renovated to an exceptional standard with modern features throughout, while retaining its original charm, enhanced by bespoke oak windowsills. The property is located in the popular village of Bankfoot which is a short drive from the A9 providing excellent commuting links to Perth and the surrounding towns. The village also benefits from the local Primary School, grocery store and recreational facilities.

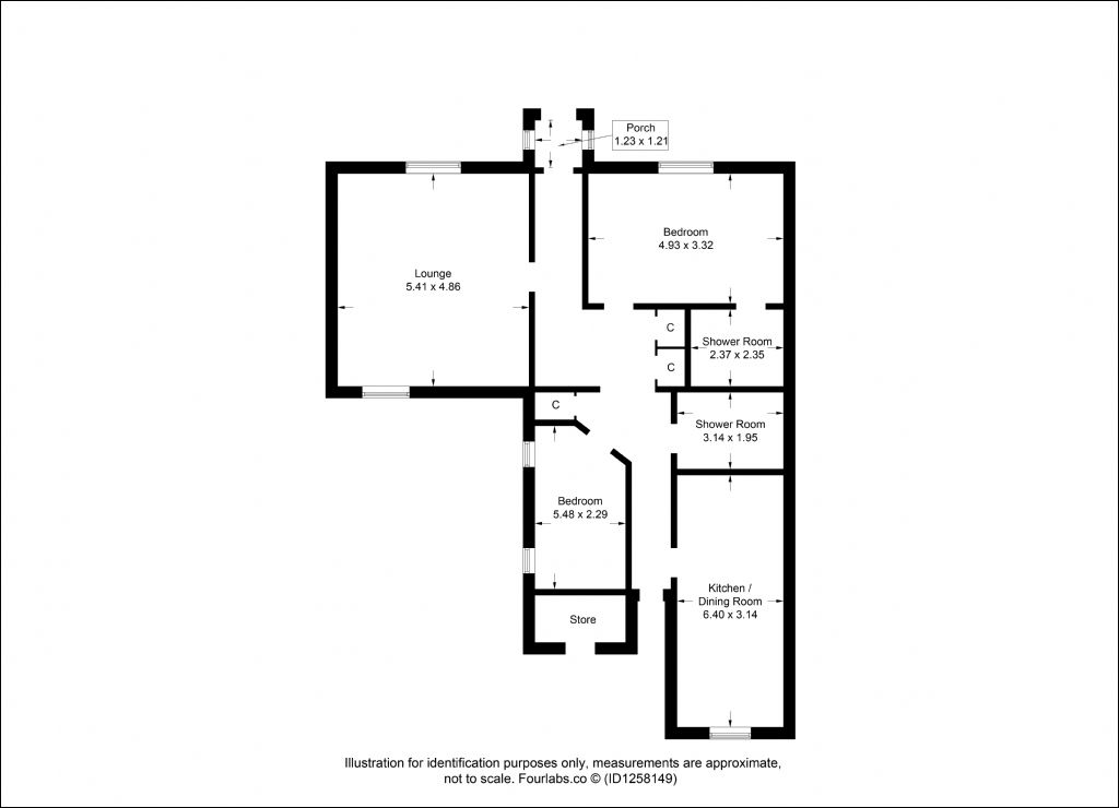
The property opens into an entrance vestibule with tiled flooring. A timber and glass door leads to the welcoming hallway, laid with re-engineered oak flooring that continues through to the lounge. There are three cupboards providing excellent storage space. The spacious lounge sits at the front of the property, featuring windows that overlook both the front and rear gardens. A log burner stove with a solid wood mantle forms the central focal point of the room.

To the rear of the property is the open-plan kitchen and dining area, enjoying scenic views over the garden. The kitchen is tastefully designed with modern grey wall and base units, complemented by a marble-effect worktop and matching breakfast bar below the window. Integrated appliances include an oven, grill and hob, with additional space available for a large fridge-freezer.

The main bedroom is generously sized and includes carpet flooring and a front facing window. This room also benefits from an en-suite which is laid with Karndean tile flooring and finished with a wet wall surround. The room is fitted with a large walk-in shower, vanity unit with wash hand basin, W.C, and heated towel rail. The second bedroom is also of a good size and is fitted with carpet flooring.

The shower room is also of a modern design with Karndean tile flooring and wet wall surround offering a sleek finish. The room is fitted with a vanity unit and wash hand basin offering additional storage space, a large walk-in shower, W.C. and heated towel rail.

To the rear of the property is an impressive garden which can be enjoyed throughout the whole year.

There is a large patio area and decking ideal for outdoor dining and entertaining throughout the summer months. Beyond the patio is a stone chipped area with path leading to the lawned garden with mature shrubs and trees. In addition, there are three outbuildings offering further storage space.

Early viewing is highly recommended to fully appreciate this property.


CONDITIONS

If you would like to enquire about this property then please call our office on 01382 227 555. Viewing by appointment only.

Back to Properties